Committente: Società G.A.I. S.p.a.
Anno: 2018 e continua
Luogo: Catania

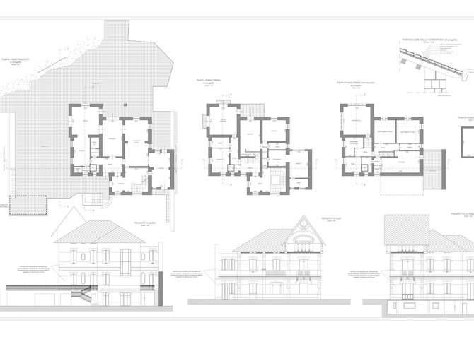
Villa Pancari

Il progetto riguarda la ristrutturazione e il restauro conservativo della storica Villa Pancari, situata in via Acque Casse 34 a Catania, con l’obiettivo di riportare l’edificio al suo splendore originario e valorizzare l’intera area circostante.

Restauro della Villa

L’intervento prevede il recupero dei prospetti esterni con tecniche non invasive, per preservare gli intonaci e le tonalità storiche originali, in accordo con la Soprintendenza ai Beni Culturali. I lavori utilizzeranno materiali compatibili e certificati, scelti in base a schede tecniche specifiche.

Recupero dei Fabbricati Annessi

Due piccoli edifici all’interno della proprietà verranno recuperati:

Intervento 1: sarà integrato nel terrazzamento circostante con una copertura a tetto giardino, creando continuità con l’area verde. Le facciate saranno rivestite in pietra lavica locale.

Intervento 2: verrà consolidato mantenendo la muratura originale in pietra lavica e coccio pesto, con una nuova copertura in legno e tegole “coppi siciliani” restaurate.

Sistemazione Esterna

Gli spazi esterni saranno riqualificati con un giardino in stile ottocentesco ispirato ai modelli italiani, caratterizzato da geometrie simboliche e nuove piantumazioni.

Il vialetto principale e l’area antistante la villa saranno pavimentati in basole di pietra lavica, in armonia con i materiali storici del luogo.

Intervento di Protezione Costiera

Per proteggere la proprietà dalle mareggiate, è previsto un frangiflutto lungo il confine e una vasca di compensazione integrata nella scogliera, con funzione di mitigazione e difesa del patrimonio.

Contattaci