Committente: Dott. Salvatore Antonino Filetti
Anno: 2025
Luogo: Catania

Studio Odontoiatrico
Dott. Filetti

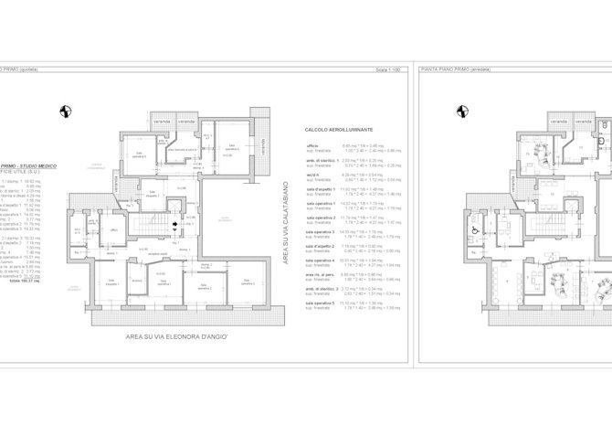
Il nostro studio ha curato con professionalità e competenza la redazione e presentazione della Segnalazione Certificata di Inizio Attività (S.C.I.A.) sanitaria per l’apertura e l’ampliamento di uno studio medico odontoiatrico sito al primo piano di un edificio ubicato in Via Eleonora d’Angiò, Catania.

L’intervento ha previsto il rispetto rigoroso delle normative vigenti in materia sanitaria e di sicurezza, garantendo tutte le condizioni necessarie per l’esercizio dell’attività odontoiatrica in conformità con i requisiti strutturali, impiantistici e igienico-sanitari.

a nostra progettazione ha integrato soluzioni tecniche innovative per ottimizzare gli spazi e migliorare la funzionalità dello studio, assicurando al contempo elevati standard qualitativi e di sicurezza per operatori e pazienti.

Contattaci