Committente: Privato
Anno: 2023
Luogo: Catania

Immobile
Via Umberto

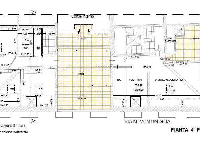
Il progetto di acustica ambientale dell’immobile di via Umberto ha riguardato un intervento di recupero e riorganizzazione funzionale di un edificio residenziale esistente, situato in un contesto urbano di pregio storico nel centro di Catania.

L’attività si è concentrata sulla valutazione preventiva del comfort acustico delle unità abitative a seguito del frazionamento degli immobili e del recupero del sottotetto, con particolare attenzione alla qualità della vita degli ambienti interni.

Lo studio ha analizzato le principali sorgenti di rumore legate agli impianti tecnologici, verificando la compatibilità dell’intervento con le normative vigenti in materia di inquinamento acustico e con il regolamento comunale. L’obiettivo è stato quello di garantire adeguati livelli di benessere acustico per le nuove configurazioni abitative, nel rispetto del contesto edilizio esistente.

Il progetto rappresenta un intervento di supporto tecnico-specialistico alla progettazione edilizia, finalizzato a coniugare riqualificazione dell’immobile, rispetto delle regole e comfort abitativo, contribuendo alla valorizzazione dell’edificio e alla corretta integrazione delle nuove funzioni residenziali nel tessuto urbano.

Contattaci